Story. Space. Experience
About
Spatial Design
Set Design
Drafting
Graphic Design
Illustration / Renderings
Client Restricted
Story. Space. Experience
About
Spatial Design
Set Design
Drafting
Graphic Design
Illustration / Renderings
Client Restricted
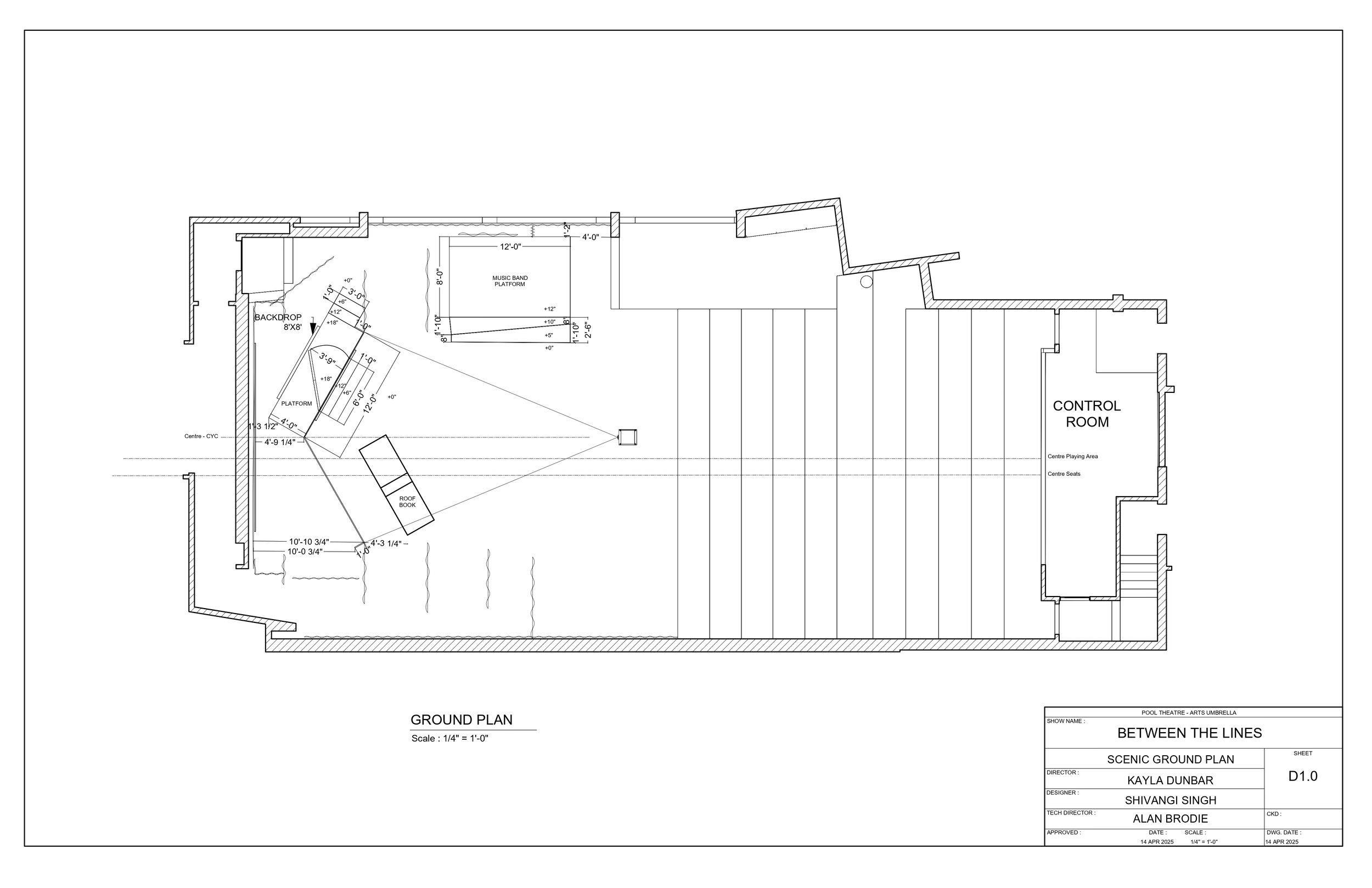
Between The Lines -Theatre
Arts Umbrella, Granville Island
Designer - Set, Props and Projections
Concept Renderings
Illustrations for Projection Design - Handrawn in Procreate
Technical Drawings
All
Music Video - Dupatta
Between The Lines-Musical
Nutcracker-The Musical
Jug Jugg Jeeyo - Feature film
Making the cut - Season1
Sweet Home - Feature Film
The Speech - Short film
Pinti Ka Sabun - Feature Film
Commercial - Tata Sky
Commercial - Kaff
Commercial - Jaquar
Commercial - Tata Sky 2
Art Department - Budget Breakdown Samples
Music Video - Dupatta
Between The Lines-Musical
Nutcracker-The Musical
Jug Jugg Jeeyo - Feature film
Making the cut - Season1
Sweet Home - Feature Film
The Speech - Short film
Pinti Ka Sabun - Feature Film
Commercial - Tata Sky
Commercial - Kaff
Commercial - Jaquar
Commercial - Tata Sky 2
Art Department - Budget Breakdown Samples